
Hello friends welcome to FreeCAD Part Modeling tutorial. In this tutorial we will do modeling of Frame in FreeCAD with the help of Dodo Workbench. If you want to learn FreeCAD from scratch you can buy my Complete FreeCAD 1.0 Course : From Zero to Expert! on Udemy.
Related Posts-:
- Model Involute Gear in FreeCAD
- Let’s understand FreeCAD Part Workbench
- Let’s Explore the FreeCAD user Interface
You can download this tutorial FreeCAD model with my FreeCAD 3D Model Library with Serial No.01 As shown in below image. once you click on image you will directed to Google drive folder where you will get FreeCAD model and it’s 2D Drawing. If you like my work please support me on ko-fi.com even if it’s just enough to Buy me a Coffee every little helps and this will be repaid in full through my sharing of knowledge.

Step by Step Video Guide to Model Frame in FreeCAD-:
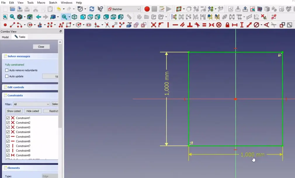
First Select the front Plane and create below sketch.

Now Create Extrude to the distance of 2000 mm As Show in below image.

Now Activate the FreeCAD Dodo Workbench

Now activate Frame Branch Manager inside Dodo Workbench As shown in below image.

Now select RHS profile from drop down as shown in below image.

Now select Square profile RH40x40xx5 As shown in below image.

Now select the RH40x40xx5 profile and edge of our object and click on OK As shown in below image.

Now you can see that FreeCAD inserted Square tube around the edge As shown in below image.

Now if we zoom at corner we can see that Frame not merged properly. As shown in below image. In next step we will fix it.

Watch the below video to fix the above issue.
Follow the above procedure to all corner and all corner should be like below image.

“Thank you for reading! If you found this article insightful and valuable, consider sharing it with your friends and followers on social media. Your share can help others discover this content too. Let’s spread knowledge together. Your support is greatly appreciated!”

